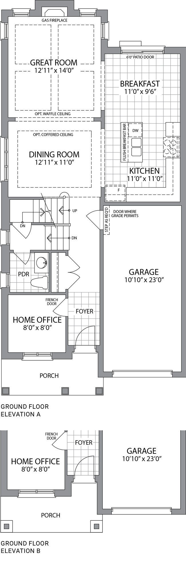
The Summerwind

The Summerwind, Elevation a

ELEVATION a

2,066 sq.ft

The Summerwind, Elevation b

ELEVATION b

2,058 sq.ft


ground Floor

second Floor

basement

Plans and specifications are subject to change without notice. E. & O. E.
Actual usable floor space may vary from the stated floor area.
All renderings are artist’s concept